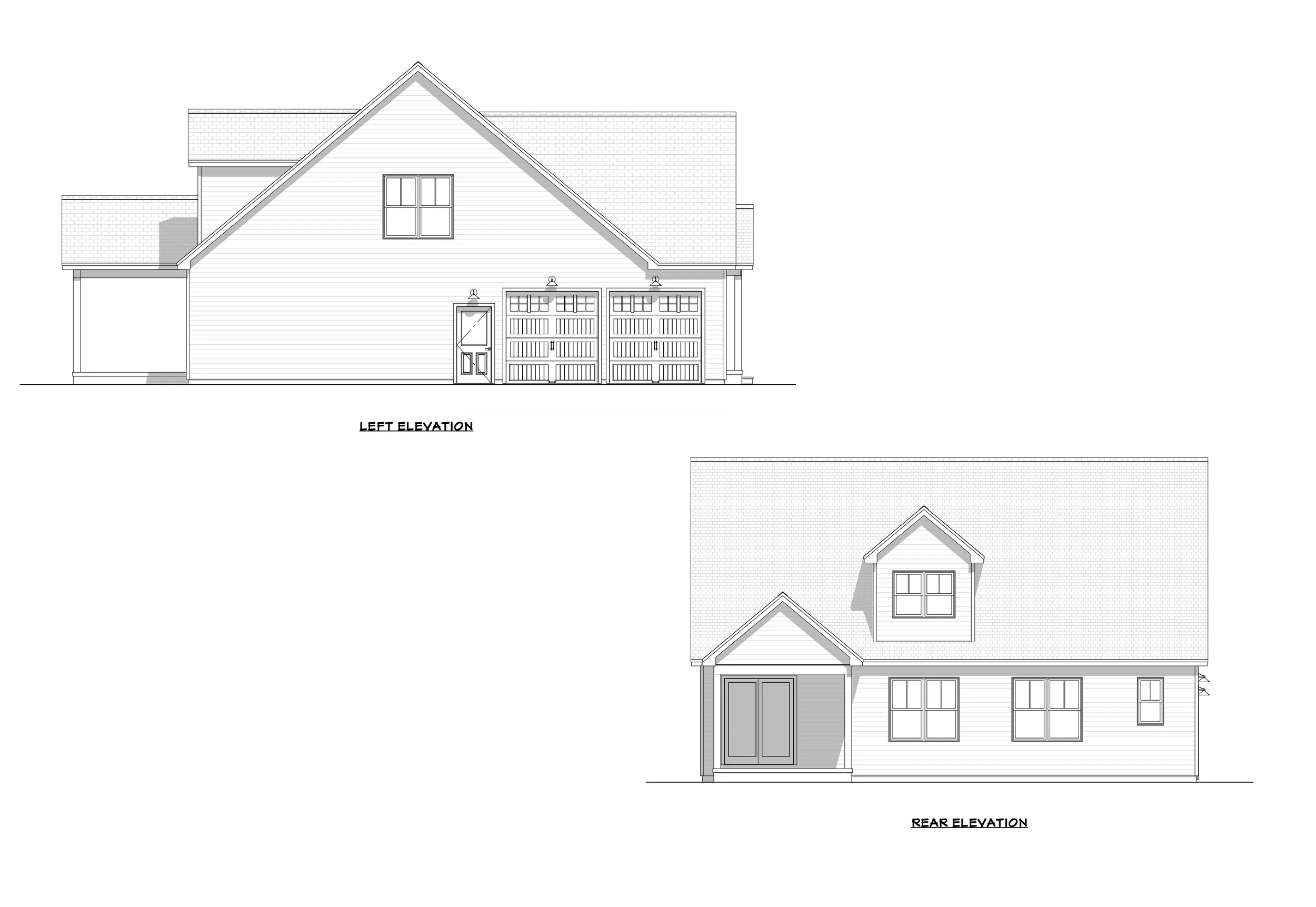
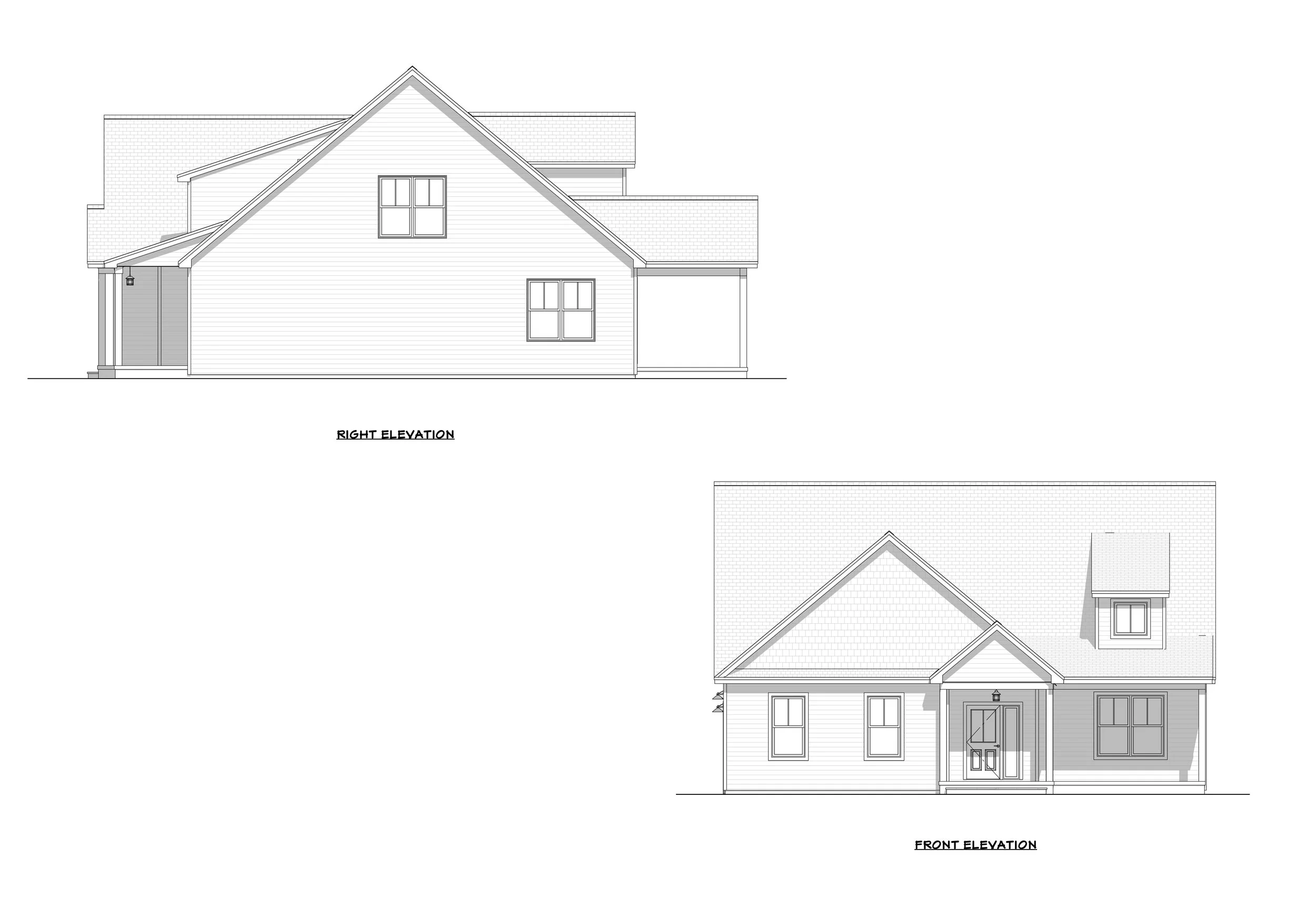
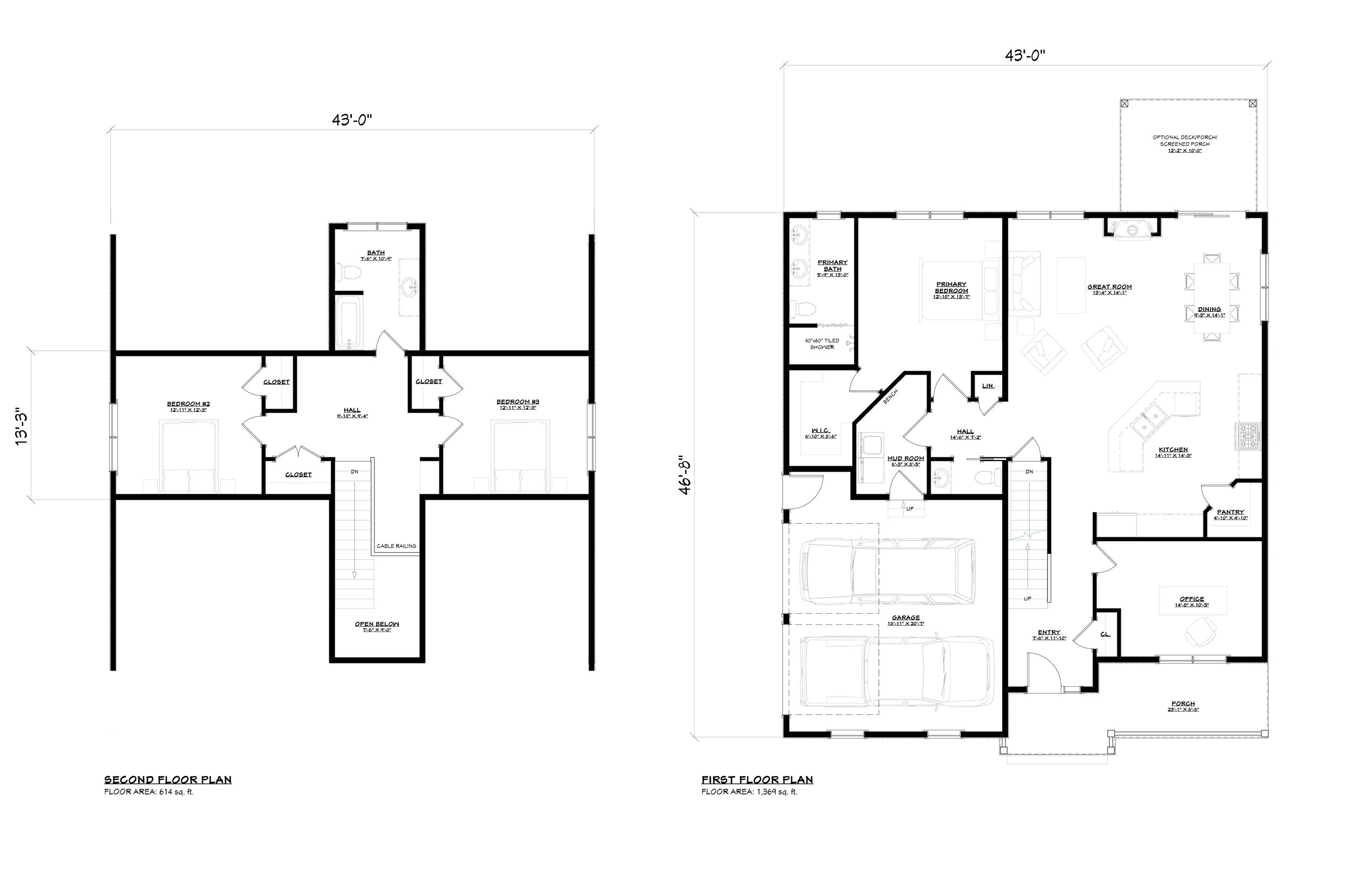
The Wilton

The Wilton is a terrific 3BR, 2.5A two-story home with open living space, a stunning private vaulted primary suite on the 1st floor, home office, and two bedrooms with a bathroom upstairs! The central kitchen with island and walk-in pantry is wide open to the living room. Enjoy the lovely front porch on this 5+ acre lot with trees on each side for privacy! Included features are impressive: 9' ceilings, finished-on-site 4'' maple hardwood floors, oak stair treads to 2nd floor, 42'' kitchen cabinetry, quartz/granite counters, propane gas FP, Harvey double-hung windows, tiled bathrooms, tiled primary shower, central air, covered front porch and more!
Photos of builders work reflected in other homes.

For more information, please contact:

Melissa Cartier

Real Estate Broker

c: 518.321.5762

Melissa@TheCartierGroup.com

Previous
Previous

The North Creek

Next
Next

The Daniels